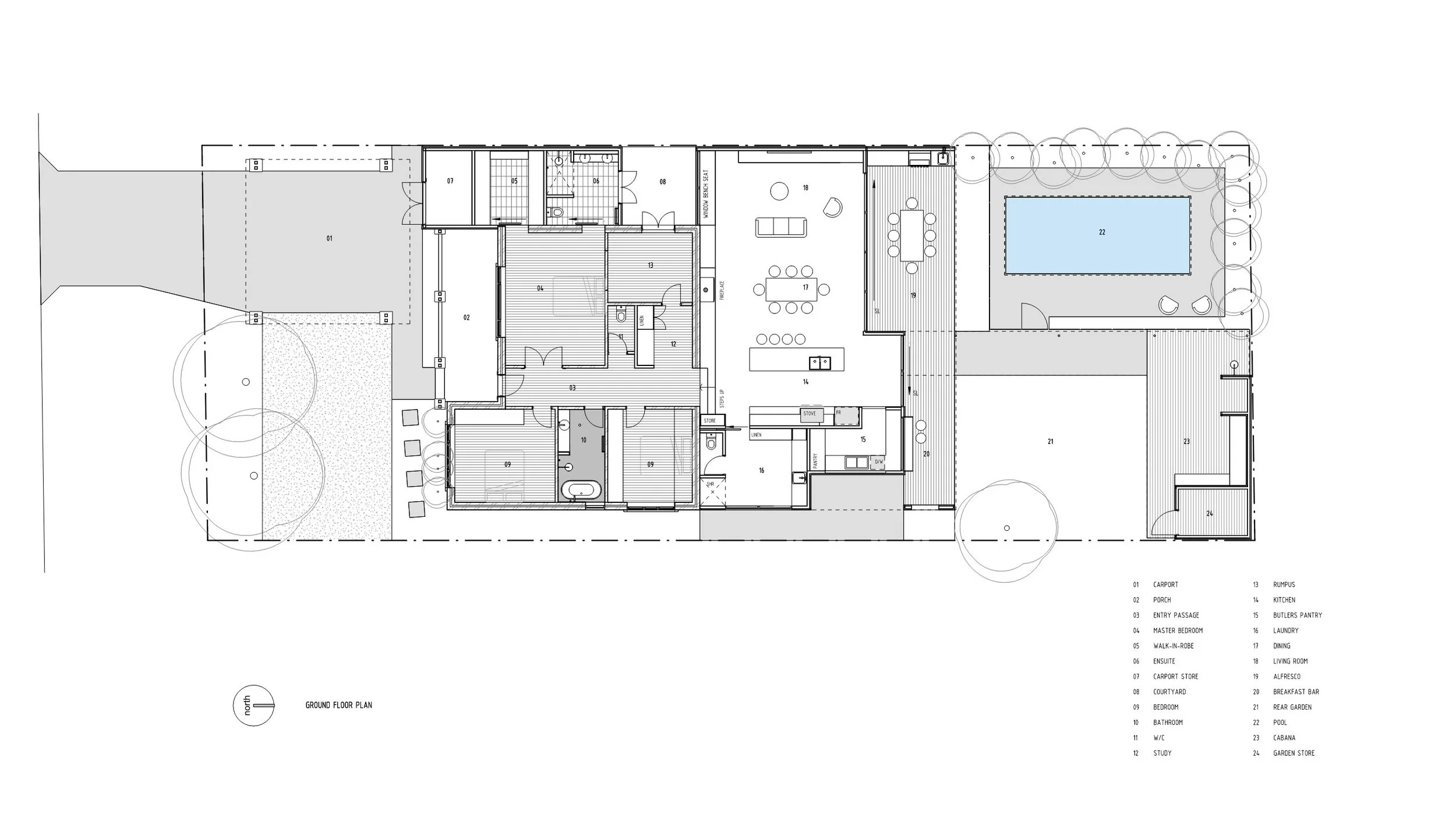
skylight house, wembley

a light filled extension to a traditional 50s era

construction: construction commencing 2026

images: produced by wilt design

Next
Next

Old New House, Beaconsfield